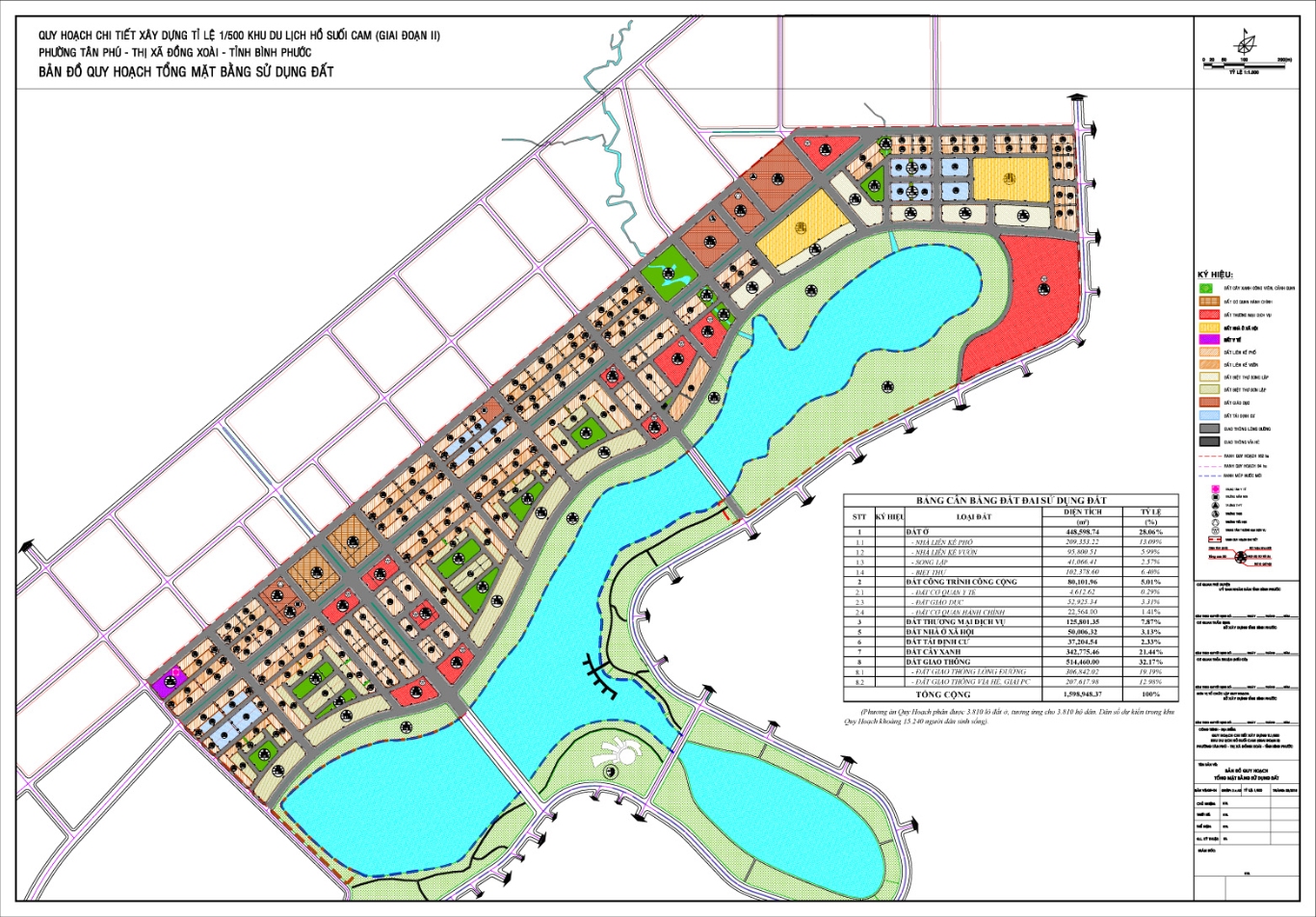
Phê duyệt đồ án và quy hoạch quản lý theo đồ án quy hoạch chi tiết xây dựng tỷ lệ 1/500 Khu du lịch Suối Cam (giai đoạn II)

Thứ năm - 13/09/2018 10:33
QH04   BAN VE QUY HOACH SU DUNG DAT Model
QH04 BAN VE QUY HOACH SU DUNG DAT Model
Phê duyệt đồ án và quy hoạch quản lý theo đồ án quy hoạch chi tiết xây dựng tỷ lệ 1/500 Khu du lịch Suối Cam (giai đoạn II)

Tổng số điểm của bài viết là: 0 trong 0 đánh giá

Click để đánh giá bài viết

Những tin mới hơn

Những tin cũ hơn

sổ tay đảng viên
DVC Quốc gia
Ứng dụng chung
1 bp today
3 dhtn
2 ioffice
4 congbao
sxd-bao ve nen tang
sxd-gop y du thao
Portal_Ispeed
Thống kê truy cập
  • Đang truy cập3,352
  • Hôm nay296,605
  • Tháng hiện tại6,828,464
  • Tổng lượt truy cập580,005,780
Bạn đã không sử dụng Site, Bấm vào đây để duy trì trạng thái đăng nhập. Thời gian chờ: 60 giây